











































5.448,25 €*
Versandkostenfreie Lieferung!
Lieferzeit: 60 bis 75 Tage
Ihr Traum vom eigenen Kamin – Mit einem Hajduk Kaminbausatz selbst verwirklichen!
Ein Kamin von Hajduk steht für Qualität, Effizienz und modernes Design. Die Kamineinsätze sind nicht nur langlebig und robust, sondern auch äußerst funktional. Perfekt für jeden, der den Komfort und die Wärme eines Kamins schätzt.
Hochwertige Kamineinsätze von Hajduk – Innovation trifft auf Langlebigkeit
1. Robuste Bauweise
Die Kamineinsätze bestehen aus einer modernen, doppelmanteligen Stahlkonstruktion. Alle Verbindungen sind fest verschweißt – es werden weder Schrauben noch Dichtungsmaterialien verwendet. Diese Konstruktion sorgt für Stabilität und eine lange Lebensdauer.
2. Clear View-Technologie
Dank des automatischen Scheibenreinigungssystems bleibt die Glasscheibe sauber, sodass Sie stets einen klaren Blick auf das faszinierende Flammenspiel haben. Ein Luftstrom wird gezielt vor der Scheibe entlanggeführt und minimiert so die Ablagerung von Ruß und Schmutz.
3. Langlebig und umweltfreundlich
Die Kamineinsätze sind für eine störungsfreie, ökonomische und nachhaltige Nutzung entwickelt. Sie erfüllen strengste europäische Umweltauflagen, einschließlich der BImSchV Stufe 2 (Deutschland), §15a B-VG (Österreich) und der VKF-Normen (Schweiz).
Hajduk Volcano 2LATH – Ihr zweiseitiger Warmluft-Eckkamineinsatz
Der Hajduk Volcano 2LATH Kamineinsatz ist eine perfekte Lösung für moderne Wohnräume. Durch die zweiseitiger Verglasung haben Sie aus nahezu jedem Winkel im Raum eine ungehinderte Sicht auf das Feuer.
Merkmale des Kamineinsatzes:
- Modell: Hajduk Volcano 2LATH, Warmluft-Eckkamineinsatz, Linksseitige Verglasung, Hebetür
- Energieeffizienzklasse: A+
- Nennwärmeleistung: 9 kW
- Gesamtwärmeleistung: 5 bis 12 kW
- Wirkungsgrad: 80 % – effizient und sparsam im Holzverbrauch
- Kühler Griff (der Griff wird nicht heiß, sondern nur warm)
- 10 cm Simstein / Feuertisch unterhalb der Brennkammer mit verdeckter Umluft (im unteren Bereich sind somit keine Lüftungsgitter nötig)
- 3 cm Simstein / Feuertisch seitlich der Brennkammer
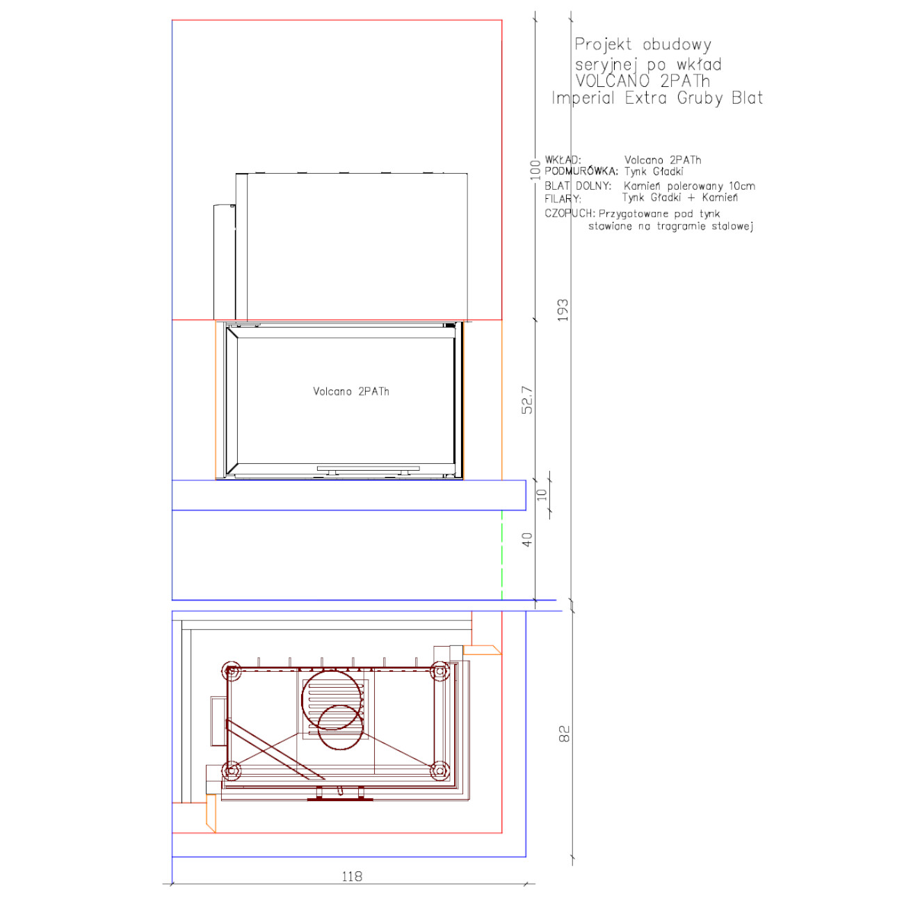
Maße des Kaminbausatzes:
- Höhe: 193 cm
- Breite: 118 cm
- Tiefe: 82 cm
- Gewicht (inkl. Kamineinsatz): 360 kg
Maße des Kamineinsatzes:
- Höhe: 132,2 cm
- Breite: 87,45 cm
- Tiefe: 47,4 cm
- Gewicht: 250 kg
Maße der Kaminfront:
- Höhe: 50 cm
- Breite: 78,5 cm
- Tiefe: 42,5 cm
Rauchrohr-Anschlussdetails:
- Durchmesser: 200 mm
- Position Rauchrohranschluss: Oben
Verbrennungsluft-Angaben:
- Externe Luftzufuhr / Raumluftunabhängiger Betrieb: Ja, optional anschließbar, mit der Externen Luftzufuhr können Sie den Ofen mit Luft aus einem Nebenraum oder von außen beheizen. Dies wirkt sich positiv auf das Raumklima aus. Ermöglicht auch den Anschluss einer elektronischen Verbrennungsluft Regelung
- Durchmesser Anschluss externe Luftzufuhr: 150 mm
- Position Anschluss externe Luftzufuhr: Hinten oder Unten
- DIBt Zulassung: Nein - jedoch teilweise möglich in Kombination mit externer Luftzufuhr und einen Sicherheitsschalter mit DIBT Zulassung
Brennstoffangaben:
- Zulässige Brennstoffe: Scheitholz; Holzbriketts
- Max. Scheitholzlänge: 50 cm
- Max. Aufgabemenge: 2,8 kg
Ausstattung des Kamineinsatzes:
- Brennraumauskleidung aus feuerfester Keramik
- Moderne Konstruktion: Zweimanteliger Stahl und feuerfeste Keramik.
- Herausnehmbarer Aschetopf: Für eine einfache Reinigung und Pflege.
- Gusseisernes Glutrost
- Feuerfeste Keramikscheiben: Robust und hitzebeständig.
- Luftzufuhrsystem Jet Stream: Für eine optimale Verbrennung und Luftverteilung.
- Scheibenspülung: Sekundärlüftung für eine klare Sicht auf das Feuer.
- 24-Stunden-Betrieb: Für eine dauerhafte und zuverlässige Wärmequelle.
Ausstattung des Kaminbausatzes:
- Neben dem Kamineinsatz enthält der Hajduk Kaminbausatz alle erforderlichen Materialien, um den Kamin individuell und nach Ihren Vorstellungen aufzubauen.
- Verkleidung: Die speziell angefertigte Verkleidung kann in Ihrer Wunschfarbe mit normaler Innenfarbe gestrichen werden. Die Verkleidung ist aus Silca Platten gefertig. Die Elemente sind bereits zugeschnitten und müssen nur noch verschraubt und geklebt werden.
- Warmluftgitter im Haubenbereich der Verkleidung: 1 Stück 17 x 49 cm im Deckel der Haube (oben - nicht sichtbar) oder 2 Stück 17 x 37 cm an den Seiten der Haube - erhältlich in 7 verschiedenen Farben und 2 Varianten (siehe Bilder)
- Steinelemente 10 cm Stark: Passen Sie den Kamin mit hochwertigen Steinen wie Granit Nero Assoluto poliert, Granit Dark Grey, Granit Star Galaxy, Granit Tan Brown, Marmor Giallo Rena, Marmor Crema Marfil oder Steel Grey perfekt an Ihren Stil an.
- Brandschutz: Inklusive Silca-Platten für eine 6 cm starken rückwärtige Brandschutz-Dämmung.
- Montagematerialien: Wandhängender-Stahltragrahmen, 2 Rauchrohrbögen, 1 Wandfutter, hitzebeständiger Kleber (25 kg), 1 Aluflexrohr, Gips, Eckputzschienen, Fassadennetz.
Vorteile eines Hajduk Kaminbausatzes
- Flexibilität: Ideal für individuelle Gestaltungsmöglichkeiten.
- Einfache Montage: Dank des enthaltenen Montagematerials und einer Aufbauanleitung gelingt der Aufbau mühelos.
- Kosteneffizienz: Sie sparen Kosten, indem Sie den Kamin selbst bauen.
- Höchste Sicherheit: Alle Komponenten sind geprüft und zertifiziert.
Hinweise für den Aufbau:
- Der Bausatz eignet sich am besten für den Aufbau an Schornsteinen welche in der Wand bündig verbaut sind. Sollte der Schornstein vor der Wand verbauten sein, kann an den Seiten des Schornsteins eine tragende Wand gemauert werden, wo der Tragrahmen der oberen Konstruktion befestigt werden kann.
Lieferung und Service:
- Lieferkosten: Kostenlos Bordsteinkante - Deutschlandweit, außer Inseln
- Lieferinfo: Die Lieferung erfolgt per Spedition, Bordsteinkante. Der Hajduk Kaminbausatz wird auf zwei Paletten geliefert.
- Dekorationsartikel auf den Bildern gehören nicht zum Lieferumfang.
Technische Daten für den Schornsteinfeger:
- Bauart A1, selbstschließende Tür (Mehrfachbelegung des Schornsteins möglich): Ja
- Bundes Immisions Schutz Verordnung (BImSchV): 1. Stufe: Ja, 2. Stufe: Ja
- §15a B-VG (Österreich): Ja
- VKF Schweiz: Ja
- CE Zeichen: Ja
- Wirkungsgrad: 80 %
- Abgastemperatur: 270 °C
- Staubemission: 12 mg/Nm³
- CO-Wert: 1000 mg/Nm³
- Abgasmassenstrom: 9 g/s
- Mindestförderdruck: 12 Pa
Mit einem Hajduk Kaminbausatz Ihren eigenen Kamin gestalten
Erleben Sie die Wärme und Gemütlichkeit eines Kamins – kombiniert mit modernster Technik und stilvollem Design. Mit einem Hajduk Kaminbausatz wird das möglich. Bestellen Sie jetzt und gestalten Sie Ihren Traumkamin!
HAJDUK Agnieszka i Dariusz Nasińscy spółka z ograniczoną odpowiedzialnością, sp. k.
ul. Kasprzaka 6F
66-400 Gorzów Wielkopolski
POLEN
Tel: +48 95 722 54 59
E-Mail: export@hajduk.eu
Ähnliche Artikel
Zubehör Artikel