































Sie wollen noch mehr aus Ihrem Brennholz herausholen? Sie wollen Ihre Kaminanlage als Ganzhausheizung nutzen?
Kein Problem, denn die beiden aquaHEAT Modelle lassen sich in Ihren Heizkreislauf einbinden. Sie können damit also genauso Heißwasser für Bad und Dusche erzeugen, wie auch warmes Wasser für z.B. eine Fußbodenheizung.
Dabei entfallen beim Modell 45x51K aquaHEAT 66% der Leistung auf den Wasseranteil, beim 65x51K aquaHEAT sind es sogar 75%.
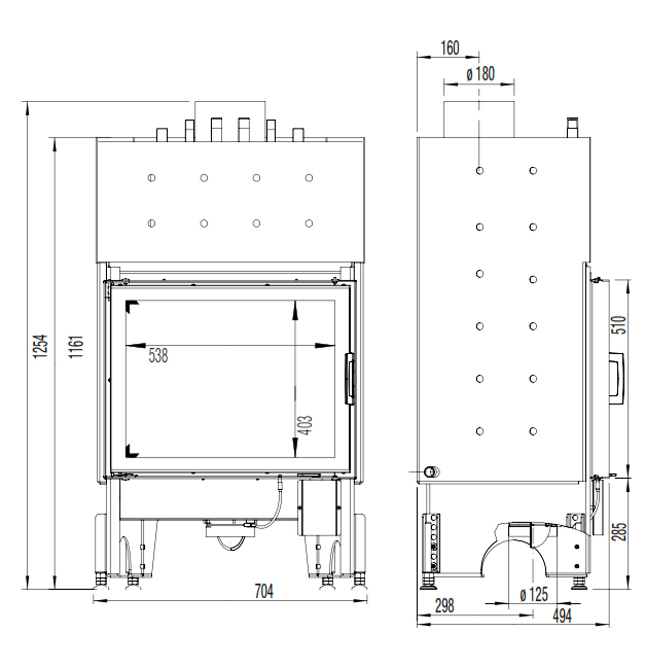
Weitere Highlights: die geringe Einbautiefe (< 50 cm), das geringe Gewicht und die kleinen Rauchrohrabgänge (Ø 150 mm bzw. Ø 180 mm).
WÄRME in ihrer schönsten Form
12 Gründe, die für einen AUSTROFLAMM KAMINEINSATZ SPRECHEN...
1. KERAMOTT: Helle Feuerraumauskleidung, die durch optimale Isolation für saubere Verbrennung sorgt.
2. BEDIENELEMENTE: Türgriffe und Verbrennungsluftregler sind als bestimmende Designelemente elegant in mattchrom (auf Wunsch in schwarz) ausgeführt und lassen sich sicher bedienen.
3. RAUCHSAMMLER: Aus dauerhaft beständigem Gusseisen; alle Elemente 360° drehbar für einfachen Schornsteinanschluss.
4. STELLFÜSSE: Einfach, sicher und schnell einstellbar.
5. TÜRGLAS: Hochhitzebeständiges Keramikglas, am Rand hinterdruckt. Und immer in maximaler Größe für viel Sicht auf die Flammen.
6. AUSSENLUFTANSCHLUSS: Verbrennungsluft wird über einen Stutzen zugeführt, der ganz einfach auch nach außen geführt werden kann. Alle Kamineinsätze sind serienmäßig für einen Außenluftanschluss vorbereitet!
7. WÄRMESPEICHERSYSTEM (Luft-Kamineinsätze): Vorbereitet für den Anbau von Wärmespeichersystemen, z. B. das patentierte Heat Memory System. Natürlich können auch Aufsatzspeicher und Nachheizflächen angeschlossen werden.
8. VERBRENNUNGSLUFTFÜHRUNG: Entscheidend für eine emissionsarme Verbrennung und saubere Scheiben. Mit nur einem Bedienelement werden nacheinander Sekundärluft (Scheibenspülung) und Primärluft geöffnet – Fehlbedienung ausgeschlossen!
9. TÜRANSCHLAG: Standard links, kann auf Wunsch einfach auf rechts geändert werden.
10. SELBSTVERRIEGELNDE TÜREN: Unsere Klapptüren sind nicht nur selbstschließend, sondern auch selbstverriegelnd! Das bringt nicht nur höheren Bedienkomfort, sondern auch mehr Sicherheit. Besonders wichtig auch, wenn raumluftunabhängig geheizt werden soll.
11. SCHIEBETÜRFÜHRUNGEN: Besonders geräuscharm und laufruhig. Gegengewichte sorgen für leichte Handhabung.
12. SCHWENKMECHANISMUS: Schiebetüren können zu Reinigungszwecken auch aufgeklappt werden - dazu ist kein Werkzeug notwendig!
Technische Daten:
Modell: Austroflamm Wasser-Kamineinsatz 45x51K mit 9 kW - 6kW Wasser - DIBt
Nennwärmeleistung: 12,5 kW
Nennwärmeleistung wasserseitig: 9,2 kW
Nennwärmeleitung Luft: 3,3 kW
Wärmeleistungsbereich: 6,0 - 17 kW
Maße des Kamins: Höhe: 125,4 cm x Breite: 70,4 cm x Tiefe: 49,4 cm
Maße der Tür: Höhe: 51,0 cm x Breite: 65,0 cm
Türanschlag: Links (kann auf Wunsch einfach auf Rechts geändert werden)
Maße der Glasscheibe: Höhe: 40,3 cm cm x Breite: 53,8 cm
Weitere Maße finden Sie bei den Bildern und im Downloadbereich im Datenblatt (Achtung! Zeichnungen inkl. Konvektionsmantel und Designrahmen)
Gewicht: 202 kg
Abstand zu brennbaren Materialien: vorne ab Sichtscheibe 80 cm
Rauchrohr-Durchmesser: 180 mm
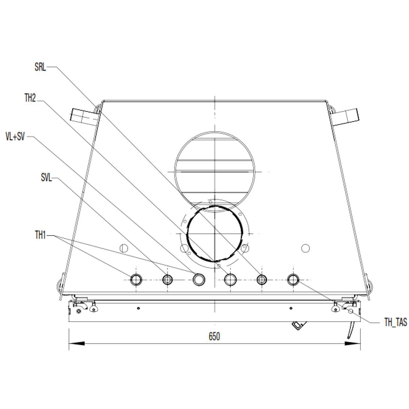
Position Rauchrohr-Anschluss: hinten, oben, 360° drehbar (siehe Maßzeichnung und Datenblatt)
Durchmesser Anschluss Externe Luftzufuhr: 125 mm (123 mm)
Position Anschluss Externe Luftzufuhr: unten
Brennstoff: Scheitholz und Holzbriketts
Max. Scheitholzlänge: 33 cm
Zul. Brennstoff-Füllmenge: 1,7 kg
Min. Luftdurchlassmenge Einlass: ≥ 700 cm²
Min. Luftdurchlassmenge Auslass: ≥ 700 cm²
Brandsicherheit: Dämmdicke hinten 40 mm, Dämmdicke Seite 40 mm, Dämmdicke Boden 0
Sicherheitsabstand zur Heizkammerwand: 6 cm
Max. Betriebsdruck: 3 bar
Zulässige Vorlauftemperatur: 105°C max
Zulässiger Betriebsdruck Sicherheitswärmetauscher: 10 bar max.
Wasserinhalt: 49 Liter
Anschlüsse Vorlauf / Rücklauf: 3/4˝ / 3/4˝
Ausstattung:
Scheibenspülung (Sekundärluft) – Klare Sicht auf das Feuer - Luftstrom vor der Glasscheibe, dadurch wird die Verschmutzung der Scheibe minimiert
Anschluss für Externe Luftzufuhr - Optional anschließbar - Mit der Externen Luftzufuhr können Sie den Ofen mit Luft aus einem Nebenraum oder von außen beheizen. Dies wirkt sich positiv auf das Raumklima aus, da kein Sauerstoff aus dem Raum verbrannt wird. Der Anschluss für die Externe Luftzufuhr ermöglicht auch einen Anschluss einer elektronischen Verbrennungsluft Regelung
24 Stunden Betrieb möglich
DIBT Zulassung (komplett Raumluftunabhängig für Niedrigenergiehäuser mit Be- und Entlüftungsanlage)
Untergestell mit verstellbaren Füßen
360° drehbarer Rauchrohranschluss aus Gusseisen
Rostlose Verbrennung: die Holzglut liegt direkt auf dem Boden des Brennraumes. Durch die Innovative Verbrennungsluft wird die Glut hocherhitzt und führt so zu einer fast vollständigen Holzverbrennung. Somit entfällt das Lästige entleeren des Aschekastens
Optionales Zubehör/Varianten: Gegen Aufpreis
Türgriff in Schwarz (Standard Mattchrom)
Verbrennungsluftregler in Schwarz (Standard Mattchrom)
Rost mit Aschekasten (Standard mit Rostloser Verbrennung)
Designrahmen (Einbaurahmen) in Gussgrau
Tragrahmen 100 cm - erleichtert die Verkleidung des Kamineinsatzes
Lieferumfang:
Wasser-Kamineinsatz 65x51K
Thermische Ablaufsicherung (4 m)
Sicherheitsventil
Reinigungsbürste
Daten für den Schornsteinfeger:
Bauart A1 (Selbstschliessende Tür): Ja
DIBt Zulassung: Ja
Bundesimmissionsschutzverordnung (BImSchV): 1. Stufe: Ja, 2. Stufe: Ja
VKF-Schweiz: Ja
Art. 15a B-VG (Österreich): Ja
Wirkungsgrad (Energieeffizienz): 82,00 %
Staub: < 40 mg/Nm³
CO-Emission (bei 13% O2): 0,08%
Abgastemperatur: 265°C
Abgasmassenstrom: 12,0 g/s
Erforderlicher Druck bei Nennwärmeleistung: 12 Pa
Bitte sprechen Sie vor dem Kauf mit Ihrem zuständigen Schornsteinfegermeister. Lassen Sie Ihren Schornstein vor dem Einbau der Feuerstelle auf Verwendbarkeit prüfen. Beachten Sie außerdem die Bedienungsanleitungen und die Sicherheitsabstände.
Dekorationsartikel und Rauchrohre gehören nicht zum Leistungsumfang
AUSTROFLAMM GmbH
Austroflamm-Platz 1
A-4631 KRENGLBACH
Tel: +43-7249-46443-0
Fax: +43-7249-46636
Email: info@austroflamm.com
Accessory Items
Similar Items