











































🔥 TermaTech TT23RG – Panorama-Kaminofen mit dreiseitiger Verglasung
Genießen Sie den faszinierenden Blick auf das Feuer von allen Seiten: Der TermaTech TT23RG vereint modernes skandinavisches Design mit hoher Verarbeitungsqualität. Durch die doppelt verglasten Seitenscheiben sind geringere Abstände zu brennbaren Materialien möglich – ideal für flexiblen Einbau.
Elegantes Design & hochwertige Materialien
Erhältlich in schwarzer Ofenfarbe mit elegant abgerundeten Stahlseiten und einer robusten Gusseisen-Topplatte, überzeugt der TT23RG durch zeitlose Optik und langlebige Stabilität. Serienmäßig ist der Kaminofen mit einem kalten Griff ausgestattet, der auch während des Betriebs angenehm kühl bleibt.
Skandinavische Technik & Bedienkomfort
Die TT23 Serie steht für einfache Handhabung und durchdachte Details. Eine große gewölbte Frontscheibe und zwei großzügige Seitenscheiben bieten einen einzigartigen Panorama-Blick auf die Flammen. Viele Bauteile – darunter Tür, Topplatte und Brennkammerboden – bestehen aus massivem Gusseisen für eine besonders lange Lebensdauer.
Praktische Funktionen
Die Verbrennung lässt sich bequem über den diskreten Regulierungsgriff unter der Gusseisentür steuern. Eine tiefe Brennkammer sorgt für saubere Verbrennung und große Glutschicht. Die große Ascheschublade mit Deckel ermöglicht ein einfaches und sauberes Entleeren. Dank der optionalen externen Frischluftzufuhr eignet sich der TT23RG auch für moderne Passivhäuser.
Frischluftanschluss & Raumklima
Frischluftanschluss / raumluftunterstützender Betrieb: Ja, optional anschließbar. Mit der externen Luftzufuhr können Sie den Kaminofen mit Luft aus einem Nebenraum, dem Keller oder von außen betreiben. Das sorgt für eine effiziente Verbrennung und wirkt sich positiv auf das Raumklima aus.
Raumluftunabhängig geprüft (RLU / DIBT): Nein
Merkmale
- Energieeffizienzklasse: A+
- Nennwärmeleistung: 5,6 kW
- Wärmeleistungsbereich: 3 bis 7 kW
- Raumheizvermögen (abhängig von der Hausisolierung): 30 bis 120 m²
- Korpus Farbe: Schwarz
- Verwendete Materialien: Stahl; Gusseisen
- Form des Kamins: Oval
- Scheibenform: Dreiseitig verglast; Ovale Scheibe
Besonderheiten
- Anschluss für externe Luftzufuhr / Frischluftzufuhr
- Kühler Griff (der Griff wird nicht heiß, sondern nur warm)
- Wandmontage
Maße des Kamins
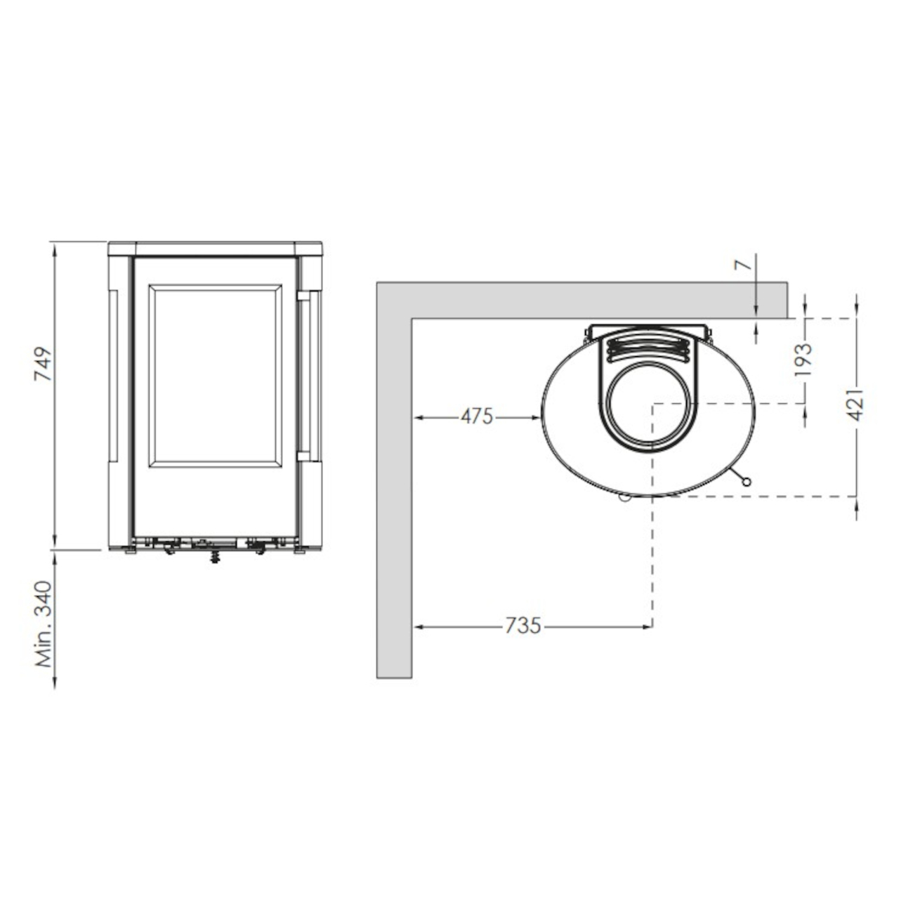
- Höhe: 74,9 cm
- Breite: 52,1 cm
- Tiefe: 42,1 cm
- Gewicht: 112 kg
Scheibenmaße
- Höhe: 41,5 cm
- Breite: 29,3 cm
- Höhe seitlicher Glasscheiben: 40 cm
- Breite seitlicher Glasscheiben: 12 cm
Türmaße
- Höhe: 68,1 cm
- Breite: 40 cm
Brennraummaße
- Höhe: 45,3 cm
- Breite: 39 cm
- Tiefe: 33 cm
Rauchrohr-Anschlussdetails
- Durchmesser: 150 mm
- Position Rauchrohranschluss: Oben oder Hinten
Verbrennungsluft Typ
- Frischluftanschluss / raumluftunterstützender Betrieb: Ja, optional anschließbar. Mit der externen Luftzufuhr können Sie den Kaminofen mit Luft aus einem Nebenraum, dem Keller oder von außen betreiben. Das sorgt für eine effiziente Verbrennung und wirkt sich positiv auf das Raumklima aus.
- Durchmesser Anschluss externe Luftzufuhr: 80 mm
- Position Anschluss externe Luftzufuhr: Hinten oder Unten / Boden / Unterhalb
- Raumluftunabhängig geprüft (RLU / DIBT): Nein
Brennstoffangaben
- Zulässige Brennstoffe: Scheitholz; Holzbriketts
- Max. Scheitholzlänge: 30 cm
- Max. Aufgabemenge: 2 kg
Ausstattung
- Scheibenspülung: Ja, klare Sicht auf das Feuer - Luftstrom vor der Glasscheibe, dadurch wird die Verschmutzung der Scheibe minimiert
- Wärmespeicherfähigkeit: Nein
- Doppelt verriegelte Tür: Ja, die Tür wird an zwei Punkten verriegelt und liegt somit besonders dicht an den Ofenkorpus an
- Ein-Regler-Steuerung: Ja, die gesamte Luftzufuhr des Ofens wird über einen Regler einfach gesteuert
- Für Dauerbetrieb geeignet (24 Std. Betrieb): Ja
- Holzfach: Nein
- Ascherost und Aschekasten: Ja
- Brennraum Auskleidung: Vermiculite
- Brennraumboden aus Gusseisen
- Automatische Verbrennungsluftregelung: Nein
- Luftströme: Primärluft; Sekundärluft; Tertiärluft
- Konvektionsofen: Ja, gewährleistet eine bessere Verteilung der Wärme
Sicherheitsabstände zu brennbaren Materialien
- Hinten: 7 cm
- Seitlich: 47,5 cm
- Vorne: 110 cm
Daten für den Schornsteinfeger
- Bauart A1 - selbstschließende Feuerraumtür (mehrfache Belegung des Schornsteins): Ja
- Bundes-Immissionsschutzverordnung (BImSchV): 1. Stufe erfüllt; 2. Stufe erfüllt
- Art. 15a B-VG (Österreich): Ja
- VKF-Schweiz: Ja
- Wirkungsgrad (Energieeffizienz): 81 %
- Feinstaub: 7 mg/m³
- Kohlenmonoxid (CO): 0,067%
- Abgastemperatur: 247°C
- Abgasmassenstrom: 5,2 g/s
- Mindestförderdruck: 11 Pa
- CE Zeichen: Ja
- Hinweis: Bitte sprechen Sie vor dem Kauf mit Ihrem zuständigen Schornsteinfegermeister. Lassen Sie Ihren Schornstein vor dem Einbau der Feuerstelle auf Verwendbarkeit prüfen. Beachten Sie außerdem die Bedienungsanleitungen und die Sicherheitsabstände.
Lieferdetails
- Lieferkosten: Kostenlos Bordsteinkante - Deutschlandweit, außer Inseln
- Lieferinfo: Die Lieferung erfolgt per Spedition, Bordsteinkante
- Dekorationsartikel und Rauchrohre gehören nicht zum Leistungsumfang
- Lieferung zum Aufstellort mit einem 2-Mann-Handling Service: Möglich gegen Aufpreis, sprechen Sie uns hierzu gerne an
Optionales Zubehör
- Holzfang – gewährleistet, dass weder Funken noch Holz aus dem Ofen fallen und minimiert Ascheablagerungen an der Fronttür
- Türgriff in Schwarz (Standard in Silber) – Stilvolle Alternative für Ihren Ofen! Dieser Türgriff in eleganten Schwarz ersetzt den Standardgriff in Silber und verleiht Ihrem Ofen einen modernen, individuellen Look. Perfekt für diejenigen, die einen persönlichen Akzent setzen möchten.
- Wärmeplatte / Kochfeld – Bei Rauchrohrabgang hinten kann die Wärmeplatte einfach auf den oberen Rauchrohranschluss aufgelegt werden. Perfekt zum Warmhalten und Erhitzen von Getränken.
TermaTech A/S
Gunnar Clausens Vej 36
DK-8260 Viby J
Denmark / Dänemark
Email: info@termatech.com
+45 87 42 00 35
Ähnliche Artikel
Zubehör Artikel
vorher 35,95 €*