Das moderne Design entspricht den aktuellen Trends in der Innenarchitektur.
Vorteile:
-Der Kamineinsatz ist für die Montage von Wärmekumulationsscheiben speziell angepasst
-Zweiteiliger gusseiserner Abgasstutzen, beweglich im Bereich von 360°
-Der Kaminkorpus und die Kaminfront sind aus Hochtemperatur-Kesselstahl
-Der Deflektor aus Acumotte verlängert den Weg der Abgase und sorgt für eine saubere Verbrennung
-Der Einsatz ist standardmäßig mit einer dekorativen Kaminglasscheibe ausgestattet
-Der Feuerraum ist mit Acumotte ausgelegt, der sechseckige Feuerraum trägt zur sauberen Verbrennung bei
-Der Einsatz hat kein Rost und kein Aschekasten, um das Ausbrennen der Asche zu gewährleisten
-Frischluftzufuhr über Primär- und Sekundärluft
-Die mitgelieferten regulierbaren Standfüße helfen bei der Einstellung der höhe
-Eingebauter externer Luftzufuhranschluss mit Luftschieber 125mm Durchmesser, zur Regulierung der Luftzufuhr
Technische Daten:
Modell: Kratki Nadia 12 Warmluft-Kamineinsatz mit Hebetür
Nennwärmeleistung: 12 kW
Wärmeleistungsbereich: 8 - 16 kW
Raumheizvermögen: 80 - 160 m² (abhängig von der Haus Isolierung)
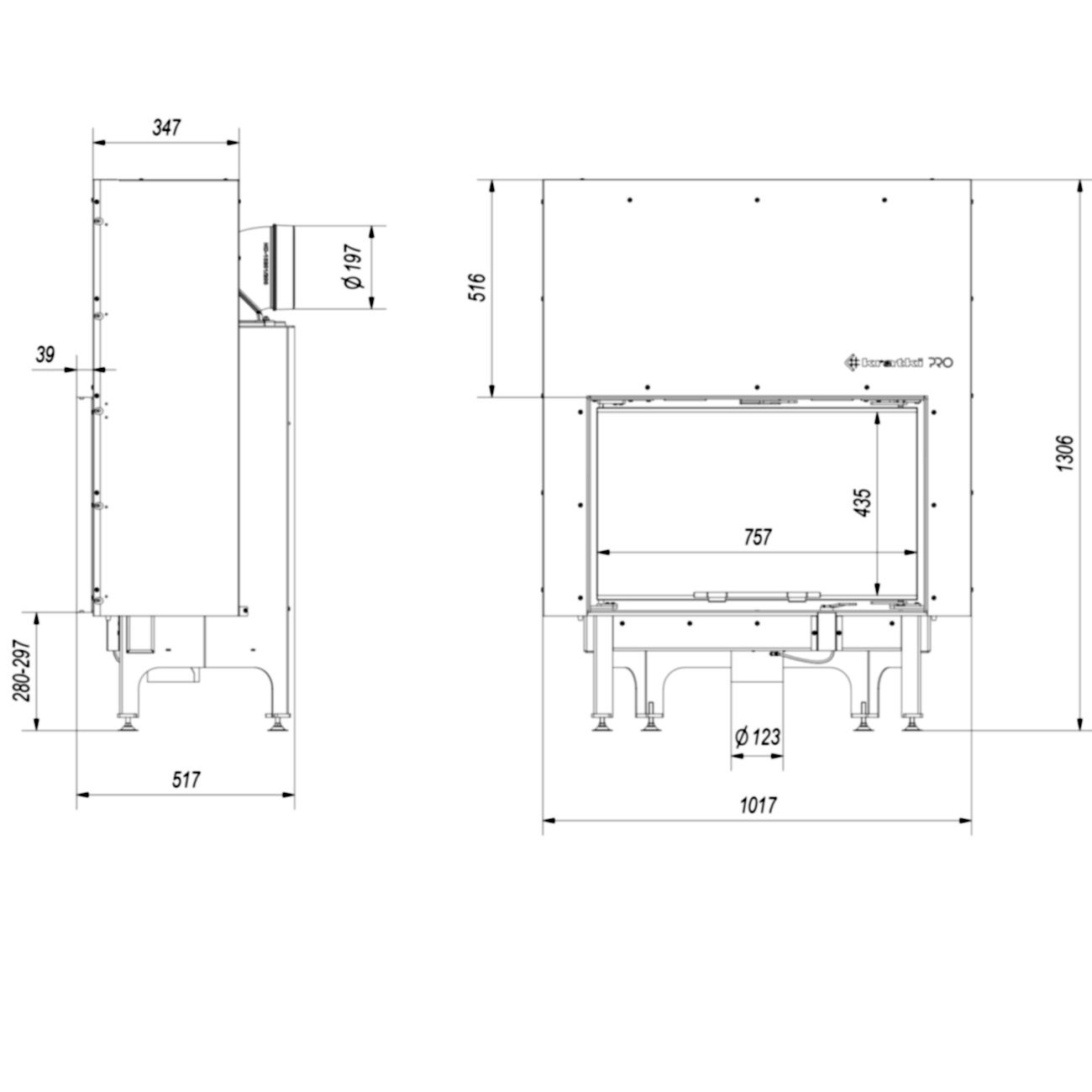
Maße des Kamins: Höhe: 130,6 cm x Breite: 101,7 cm x Tiefe: 51,7 cm
Maße der Glasscheibe: Höhe: 43,5 cm x Breite: 75,7 cm
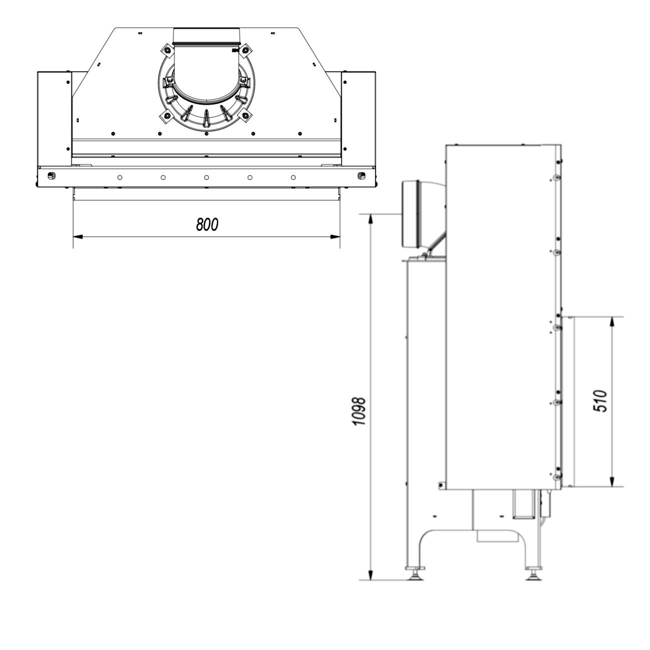
Weitere Maße finden Sie bei den Bildern
Gewicht: 249 kg
Durchmesser Rauchrohr: 200 mm (197 mm)
Position Rauchrohr-Anschluss: oben, 360° drehbar
Durchmesser Anschluss Externe Luftzufuhr: 125 mm (123 mm)
Max. Scheitholzlänge: 40 cm
Brennstoff: Scheitholz, Holzbriketts und Holzbriketts
Ausstattung:
Scheibenspülung – Klare Sicht auf das Feuer - Luftstrom vor der Glasscheibe, dadurch wird die Verschmutzung der Scheibe minimiert
Anschluss für Externe Luftzufuhr - Optional anschließbar - Mit der Externen Luftzufuhr können Sie den Ofen mit Luft aus einem Nebenraum oder von außen beheizen. Dies wirkt sich positiv auf das Raumklima aus, da kein Sauerstoff aus dem Raum verbrannt wird. Der Anschluss für die Externe Luftzufuhr ermöglicht auch einen Anschluss einer elektronischen Verbrennungsluft Regelung
Rostlose Verbrennung (Brennraum ohne Rost) - die Holzglut liegt direkt auf dem Schamotteboden des Brennraumes. Die Verbrennungsluftzufuhr wird nicht von unten, wie üblicherweise, zu der Glut zugeführt sondern durch die Brennraumwände, dadurch wird die Glut nicht so abgekühlt und führt zu einer vollständige Holzverbrennung und einen hohen Wirkungsgrad.
24 Stunden Betrieb möglich
Untergestell mit verstellbaren Füßen
Acumotte Feuerraum - Speichert die Wärme
Daten für den Schornsteinfeger:
Bauart A1 (Selbstschliessende Feuerraumtür): Optional
Bundesimmissionsschutzverordnung (BImSchV): 2. Stufe
Art. 15a B-VG (Österreich): Ja
Wirkungsgrad (Energieeffizienz): 81%
Staub: 36 mg/Nm³
CO-Emission (bei 13% O2): 921 mg/Nm³
Abgastemperatur: 245°C
Abgasmassenstrom: 12,6 g/s
Erforderlicher Druck bei Nennwärmeleistung: 12 Pa
Optionales Zubehör:
Blendrahmen
schwarze Brennraumauskleidung (Standard weiß)
4 zusätzliche Füße
Dekorationsartikel und Rauchrohre gehören nicht zum Leistungsumfang
Kratki.pl Marek Bal
ul. W. Gombrowicza 4
Jedlińsk 26-660
Polen
004935817925572
contact@kratki.com






















