SICHERHEIT AUF HÖCHSTEM NIVEAU
Die VN Kamineinsatz-Serie gewährleistet eine hohe Sicherheit gegen das unbefugte Öffnen der Tür, durch eine Kindersicherung.
Die Vorderseite des Einsatzes ist mit hitzebeständiger Keramik ausgestattet, die Temperaturen von bis zu 800°C aushält. Das beigefügte Glas hat ein Qualitäts- und Sicherheitszertifikat.
Der Korpus und die Vorderseite des Einsatzes sind durch die Verwendung von hochwertigem Stahl sehr hochtemperaturbeständig.
Der Türrahmen besteht aus einem geschlossenen Profil, das sich stabil und widerstandsfähig gegen Spannungen im Hochtemperaturbetrieb macht. Die hervorragende Dichtigkeit des Einsatzes wird durch die massiven Schweißnähte im Edelgasschild gewährleistet. Stahlelemente werden mit modernen Geräten lasergeschnitten und anschließend auf CNC-Biegemaschinen gebogen.
MODERNES DESIGN
Der Kamin ist mit einem dekorativen Scheibe ausgestattet, dank dem er elegant und modern aussieht. Die Verwendung dieser Lösung vergrößert optisch die Vorderseite des Einsatzes und betont die Sicht ins Feuer.
KOMFORTABLER GEBRAUCH
Die Tür arbeitet mit einem Lift-Up-System - das Fenster wird angehoben (Hebetür). Dieses System wurde auf der Grundlage des Gegengewichts gebaut - die Stahlseilrolle arbeitet in Führungen auf zwei Kugellagern, dank denen das Gewicht der Tür gleichmäßig verteilt wird. Sie bewegen sich auf feuerfesten Lagern entlang, der im Rahmen montierten Gleitführungen, was deren leichten, ruhigen und störungsfreien Betrieb garantiert. Die Bewegung der Tür verläuft einige Millimeter vom Körper entfernt, wodurch eine Beschädigung der Dichtung verhindert wird. Abschließbare Türen werden mit großer Kraft in den Rahmen gedrückt, wodurch der Ofen vollständig abgedichtet wird.
Ein zusätzlicher Mechanismus, mit dem das Seitenfenster seitlich geöffnet werden kann, erleichter die Reinigung und hilft den Ofen sauber zu halten.
Der Kamineinsatz ist zusätzlich mit einem sauberen Glassystem ausgestattet - dank der sogenannten Scheibenspülung, wo ein gleichmäßig verteilt er Luftstrom zieht, "fegt" dieses das Glas und minimiert die Ablagerung von Ruß auf ihm.
Der Kamin hat eine speziell profilierte Bodenplatte aus Acumotte, dank der die Brennkammer tiefer ist und mehr Holz hingelegt werden kann. Dank des Rostes und des Aschebehälters, in dem sich die Asche ansammelt, ist es somit einfacher, den Kamineinsatz sauber zu halten.
Das interne Revisions-System ermöglicht es (siehe Video), Service-Arbeiten von der Innenseite des Ofens aus durchzuführen, ohne das Gehäuse des Kamins zu zerstören.
Dank verstellbarer Füße und einem beweglichen Auslass mit einstellbaren 360°, kann er für eine Vielzahl von Montagebedingungen verwendet werden.
MAXIMALE ENERGIEEINSATZ
Die effizientere Verbrennung und längere Temperaturerhaltung ist auf die Auskleidung der Acumotte Brennkammer zurückzuführen, ein wärmespeicherndes Material, dass die Temperatur im Ofen erhöht. Darüber hinaus wirkt seine glatte, weiße Oberfläche im Kamin eindrucksvoll.
Die Nachverbrennung von Kraftstoffpartikeln erfolgt aufgrund von zwei Deflektoren, die den Abgasweg verlängern. Dieser Prozess erhöht auch die Effizienz der Verbrennung und garantiert eine bessere Nutzung von Energie und minimiert somit die Emission von Schadstoffen in die Atmosphäre.
Das Gerät verfügt über ein Dreifach-Lüftungssystem für die Brennkammer, wodurch das Holz ökologisch und vor allem sparsam brennt.
Die Primärluft wird dem Einsatz von außen zugeführt, dank des eingebauten 125 mm Lufteinlassanschlusses. Der Luftansaugstutzen befindet sich im Boden des Einsatzes. Die Einstellung erfolgt über eine eingebaute Drosselklappe, die von einem Regler unter der Tür eingestellt wird. Der gesamte Mechanismus arbeitet im Kamin, sehr leise und störungsfrei.
ÖKOLOGISCHE VERBRENNUNG
Das VN-Modell erfüllt die Ökodesign- Kriterien und den restriktiven BImSchV 2- Standard, der die maximale CO-Emission festlegt.
Technische Daten:
Modell: Kratki Eck-Kamineinsatz VNP Rechts mit 9 kW und Hebetür (auch anders zu öffnen für eine perfekte Reinigung)
Farbe: Schwarz
Nennwärmeleistung: 9 kW
Wärmeleistungsbereich: 3,5 - 11 kW
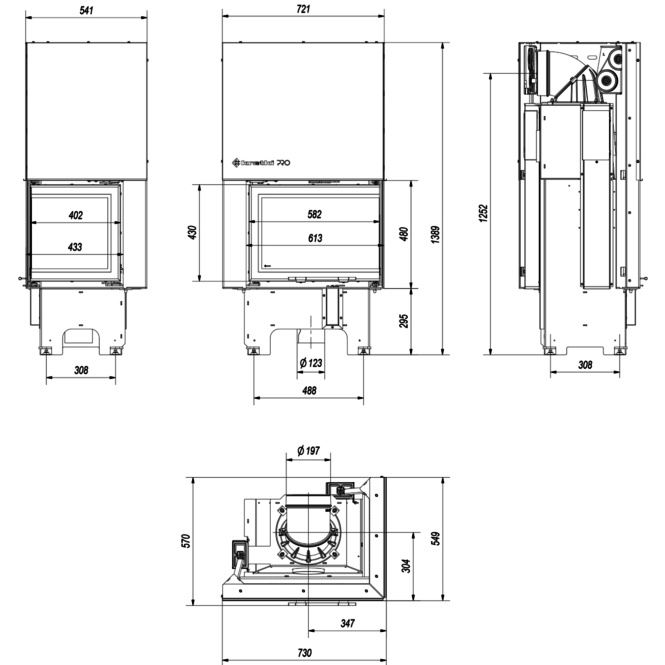
Maße des Kamins: Höhe: 138,9 cm x Breite: 73 cm x Tiefe: 57,0 cm
Maße der Glasscheibe: Höhe: 43,0 cm x Breite: 58,2 cm x Tiefe: 40,2 cm
Weitere Maße finden Sie bei den Bildern
Gewicht: 204 kg
Abstand zu brennbaren Materialien: vorne 100 cm
Rauchrohr-Durchmesser: 200 mm (197 mm)
Position Rauchrohr-Anschluss: hinten, oben (siehe Maßzeichnung)
Durchmesser Anschluss Externe Luftzufuhr: 125 mm (123 mm)
Position Anschluss Externe Luftzufuhr: unten
Brennstoff: Scheitholz und Holzbriketts
Max. Scheitholzlänge: 40 cm
Min. Luftdurchlassmenge Einlass: ≥ 500 cm²
Min. Luftdurchlassmenge Auslass: ≥ 700 cm²
Ausstattung:
Scheibenspülung (Sekundärluft) – Klare Sicht auf das Feuer - Luftstrom vor der Glasscheibe, dadurch wird die Verschmutzung der Scheibe minimiert
Anschluss für Externe Luftzufuhr - Optional anschließbar - Mit der Externen Luftzufuhr können Sie den Ofen mit Luft aus einem Nebenraum oder von außen beheizen. Dies wirkt sich positiv auf das Raumklima aus, da kein Sauerstoff aus dem Raum verbrannt wird. Der Anschluss für die Externe Luftzufuhr ermöglicht auch einen Anschluss einer elektronischen Verbrennungsluft Regelung
Glutrost und Aschetopf
24 Stunden Betrieb möglich
Untergestell mit Verstellbaren Füßen
360° drehbarer Rauchrohranschluss
Die Glasscheibe ist bis zu 800°C Hitzebeständig
Der Kamineinsatz ist mit einer Primär-, Sekundär- und Tertiärluft ausgestattet
Hebetür/Schiebetür, welche sich auch normal öffnen lässt, um eine perfekte Reinigung zu ermöglichen
Revisions-System (siehe Video) ermöglicht Service-Arbeiten von der Innenseite des Ofens aus durchzuführen
Kindersicherung - Sicherheit gegen unbefugtes Öffnen der Tür
Daten für den Schornsteinfeger:
Bauart A1 (Selbstschliessende Tür): Ja, optional, selbst-einstellbar
Bundesimmissionsschutzverordnung (BImSchV): 1. Stufe: Ja, 2. Stufe: Ja
Art. 15a B-VG (Österreich): Ja
Wirkungsgrad (Energieeffizienz): 81 %
Staub: 23 mg/Nm³
CO-Emission (bei 13% O2): 0,09% / 1000 mg/m³
Abgastemperatur: 220 °C
Erforderlicher Druck bei Nennwärmeleistung: 12 Pa +/-2 Pa
Bitte sprechen Sie vor dem Kauf mit Ihrem zuständigen Schornsteinfegermeister. Lassen Sie Ihren Schornstein vor dem Einbau der Feuerstelle auf Verwendbarkeit prüfen. Beachten Sie außerdem die Bedienungsanleitungen und die Sicherheitsabstände.
Dekorationsartikel und Rauchrohre gehören nicht zum Leistungsumfang
 Kratki.pl Marek Bal
ul. W. Gombrowicza 4
Jedlińsk 26-660
Polen
004935817925572
contact@kratki.com






























