Vorteile:
Der Kaminkorpus und die Vorderseite bestehen aus 4 mm dicken Stahlblechen und ermöglichen somit den Betrieb bei hohen Temperaturen
Die Stahlelemente sind mit Laser Technologie geschnitten worden und dann auf einer CNC-Biegemaschinen bearbeitet
Der Kamineinsatz wurde mit Edelgas geschweißt was eine gute Qualität der Schweißnähte bietet
Die Glasscheibe ist bis zu 800°C Hitzebeständig
Untergestell mit verstellbaren Füßen
Regelbare Luftzufuhr von Primärluft (Luftzug vor der Glasscheibe und von unten) und Sekundärluft (Oberseite des Brennraums)
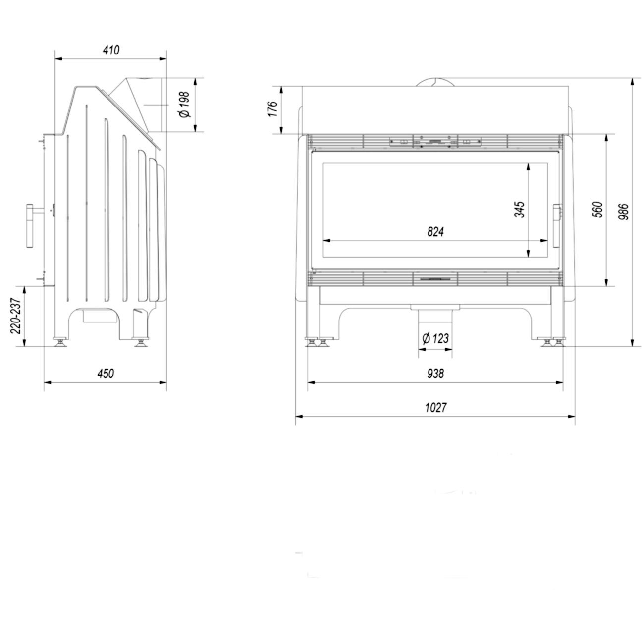
Technische Daten:
Modell: Kratki Blanka 14 Warmluft-Kamineinsatz mit Schwenktür
Nennwärmeleistung: 16 kW
Wärmeleistungsbereich: 7,5 - 21,5 kW
Maße des Kamins: Höhe: 97,8 cm x Breite: 102,7 cm x Tiefe: 45,0 cm
Maße der Glasscheibe: Höhe: 34,5 cm x Breite: 82,4 cm
Weitere Maße finden Sie in der Bildergalerie
Gewicht: 195 kg
Rauchrohr-Durchmesser: 200 mm
Position Rauchrohr-Anschluss: oben
Durchmesser Anschluss Externe Luftzufuhr: 125 mm
Brennstoff: Scheitholz und Braunkohlebriketts
Max. Scheitholzlänge: 50 cm
Ausstattung:
Scheibenspülung – Klare Sicht auf das Feuer - Luftstrom vor der Glasscheibe, dadurch wird die Verschmutzung der Scheibe minimiert
Anschluss für Externe Luftzufuhr - Optional anschließbar - Mit der Externen Luftzufuhr können Sie den Ofen mit Luft aus einem Nebenraum oder von außen beheizen. Dies wirkt sich positiv auf das Raumklima aus, da kein Sauerstoff aus dem Raum verbrannt wird. Der Anschluss für die Externe Luftzufuhr ermöglicht auch einen Anschluss einer elektronischen Verbrennungsluft Regelung
24 Stunden Betrieb möglich
Glutrost und Aschetopf
Untergestell mit verstellbaren Füßen
Acumotte Feuerraum - Speichert die Wärme
Daten für den Schornsteinfeger:
Bauart A1 (Selbstschliessende Tür): Nein
Bundesimmissionsschutzverordnung (BImSchV): 2. Stufe
Art. 15a B-VG (Österreich): Ja
Wirkungsgrad (Energieeffizienz): 83 %
Staub: 39 mg/Nm³
CO-Emission (bei 13% O2): 1158 mg/Nm³
Abgastemperatur: 330 °C
Abgasmassenstrom: 14,2 g/s
Erforderlicher Druck bei Nennwärmeleistung: 12 Pa +/-2 Pa
Optionales Zubehör:
4 zusätzliche Füße
Dekorationsartikel und Rauchrohre gehören nicht zum Leistungsumfang
Kratki.pl Marek Bal
ul. W. Gombrowicza 4
Jedlińsk 26-660
Polen
004935817925572
contact@kratki.com









